I. Tiêu chí lựa chọn đơn vị thiết kế, thi công nội thất văn phòng
Việc lựa chọn đơn vị thiết kế, thi công nội thất văn phòng không chỉ quyết định đến tính thẩm mỹ của không gian mà còn ảnh hưởng trực tiếp đến công năng, chi phí và hiệu quả sử dụng lâu dài. Do đó, doanh nghiệp cần dựa vào những tiêu chí cụ thể dưới đây để chọn được đối tác đáng tin cậy:
Các tiêu chí quan trọng cần xem xét:
-
Kinh nghiệm & uy tín: Đơn vị có thương hiệu, quy trình bài bản. Tham khảo những đánh giá và phản hồi thực tế để kiểm tra mức độ uy tín.
-
Năng lực & dự án: Thường xuyên cập nhật dự án mới, nhiều công trình đã thực hiện, phù hợp phong cách doanh nghiệp.
-
Đội ngũ chuyên môn: Kiến trúc sư sáng tạo, kỹ sư giám sát và thợ thi công tay nghề cao.
-
Quy trình làm việc: Rõ ràng từ khảo sát, thiết kế, báo giá đến thi công – bàn giao.
-
Vật liệu & thiết bị: Sử dụng vật liệu đạt chuẩn, nguồn gốc rõ ràng, đảm bảo thẩm mỹ và độ bền.
-
Giá cả & hợp đồng: Báo giá minh bạch, chi tiết từng hạng mục, cam kết không phát sinh.
-
Bảo hành & hậu mãi: Chính sách bảo hành dài hạn, hỗ trợ nhanh chóng sau bàn giao.
Với các tiêu chí trên, doanh nghiệp sẽ dễ dàng đánh giá, so sánh và lựa chọn được đối tác thiết kế – thi công nội thất văn phòng uy tín, đảm bảo công trình đẹp, bền và đúng ngân sách.

II. Những hạng mục nội thất không thể thiếu trong văn phòng hiện đại
Trong một dự án thiết kế thi công văn phòng, việc phân chia và bố trí từng hạng mục nội thất đóng vai trò vô cùng quan trọng. Mỗi không gian không chỉ đảm bảo công năng sử dụng mà còn góp phần xây dựng hình ảnh và văn hóa doanh nghiệp. Dưới đây là những khu vực trọng yếu thường được chú trọng trong thiết kế nội thất văn phòng hiện đại:
-
Khu vực lễ tân
Quầy lễ tân là không gian đầu tiên mà khách hàng và đối tác nhìn thấy khi đến văn phòng, vì vậy nó đóng vai trò quan trọng trong việc tạo dựng hình ảnh chuyên nghiệp cho doanh nghiệp. Nội thất tại khu vực này thường bao gồm quầy lễ tân hiện đại với kiểu dáng phù hợp phong cách thương hiệu, ghế ngồi chờ hoặc sofa tiếp khách tạo sự thoải mái, kết hợp với cây cảnh, tranh trang trí để tăng tính thẩm mỹ. Một khu vực lễ tân được thiết kế chỉn chu không chỉ mang đến sự tiện nghi mà còn thể hiện sự chuyên nghiệp, đẳng cấp của doanh nghiệp ngay từ ấn tượng đầu tiên.

-
Phòng giám đốc
Phòng giám đốc là không gian trung tâm thể hiện tầm vóc và phong cách lãnh đạo của doanh nghiệp. Nội thất thường được thiết kế sang trọng và tinh tế, bao gồm bàn giám đốc cao cấp với kiểu dáng mạnh mẽ, ghế da công thái học mang lại sự thoải mái khi làm việc, tủ tài liệu lớn phục vụ lưu trữ hồ sơ và bộ sofa tiếp khách tạo sự chuyên nghiệp trong các cuộc gặp gỡ đối tác. Bên cạnh đó, việc bố trí ánh sáng, cây xanh và chi tiết trang trí hài hòa sẽ giúp khẳng định đẳng cấp, đồng thời mang đến không gian làm việc tiện nghi, truyền cảm hứng và nâng cao hình ảnh thương hiệu.

-
Phòng họp
Phòng họp là không gian quan trọng nơi diễn ra các cuộc trao đổi, thảo luận và đưa ra quyết định chiến lược của doanh nghiệp. Nội thất chủ yếu gồm bàn họp lớn tùy theo quy mô, ghế họp thoải mái hỗ trợ ngồi lâu, cùng các trang thiết bị cần thiết. Một phòng họp được thiết kế khoa học, ánh sáng hợp lý và cách âm hiệu quả không chỉ tăng sự tập trung mà còn tạo môi trường chuyên nghiệp, giúp nâng cao hiệu quả làm việc và khẳng định hình ảnh của doanh nghiệp trong mắt đối tác.

-
Phòng nhân viên
Phòng nhân viên là khu vực có tần suất sử dụng nhiều nhất, đòi hỏi sự bố trí khoa học để tối ưu diện tích và mang lại sự thoải mái khi làm việc. Nội thất thường bao gồm bàn làm việc hoặc modul linh hoạt, ghế xoay công thái học hỗ trợ sức khỏe, vách ngăn tạo không gian riêng tư và hộc tủ di động tiện lợi. Một phòng nhân viên được thiết kế hợp lý, kết hợp ánh sáng tự nhiên, cây xanh và màu sắc hài hòa sẽ giúp tăng sự tập trung, khuyến khích sáng tạo và nâng cao năng suất làm việc của đội ngũ.

-
Phòng pantry/relax
Phòng pantry/relax là không gian nghỉ ngơi, tái tạo năng lượng cho nhân viên sau những giờ làm việc căng thẳng. Nội thất thường bao gồm tủ kệ lưu trữ, bàn ghế gọn gàng, quầy pha chế trà – cà phê, cùng các thiết bị tiện ích như máy nước nóng lạnh, tủ lạnh nhỏ. Khu vực này có thể bố trí thêm sofa êm ái, ghế thư giãn hoặc góc giải trí nhẹ để tạo cảm giác thoải mái. Một phòng pantry/relax được thiết kế ấm cúng, tiện nghi và thân thiện sẽ góp phần nâng cao tinh thần, gắn kết đồng nghiệp và tạo môi trường làm việc hiện đại, nhân văn.

III. Quy trình làm việc của các đơn vị thiết kế, thi công nội thất văn phòng
Để mang đến những không gian làm việc hiện đại, chuyên nghiệp và tối ưu công năng, các đơn vị thiết kế thi công nội thất luôn áp dụng một quy trình làm việc chặt chẽ và khoa học. Quy trình này không chỉ đảm bảo tiến độ và chất lượng công trình, mà còn giúp doanh nghiệp dễ dàng theo dõi, kiểm soát chi phí và đạt được kết quả đúng như mong muốn.
-
Quy trình thiết kế nội thất văn phòng
Bước 1: Khảo sát hiện trạng
Đo đạc diện tích, đánh giá mặt bằng và thu thập thông tin về nhu cầu sử dụng không gian.
Bước 2: Tư vấn & trao đổi ý tưởng
Lắng nghe mong muốn của doanh nghiệp, định hướng phong cách và gợi ý giải pháp thiết kế phù hợp với ngân sách.
Bước 3: Lập mặt bằng công năng
Bố trí không gian làm việc, sắp xếp các khu vực chức năng nhằm tối ưu diện tích và công năng sử dụng.
Bước 4: Thiết kế ý tưởng sơ bộ
Đưa ra bản vẽ 2D thể hiện phong cách tổng thể, màu sắc và định hướng nội thất.
Bước 5: Thiết kế 3D chi tiết
Mô phỏng trực quan toàn bộ không gian bằng bản vẽ 3D, giúp khách hàng hình dung thực tế.
Bước 6: Hoàn thiện hồ sơ thiết kế
Bàn giao bộ hồ sơ chi tiết bao gồm bản vẽ kỹ thuật, bản vẽ vật liệu và danh mục nội thất để chuẩn bị cho giai đoạn thi công.

-
Quy trình thi công nội thất văn phòng
Bước 1: Chuẩn bị & ký hợp đồng
Thống nhất hồ sơ thiết kế, báo giá chi tiết, tiến hành ký kết hợp đồng thi công.
Bước 2: Lập kế hoạch thi công
Xây dựng tiến độ, bố trí nhân sự và chuẩn bị vật tư, thiết bị cần thiết.
Bước 3: Thi công phần thô & hệ thống kỹ thuật
Thực hiện các hạng mục cơ bản như trần, sàn, vách, điều hòa, mạng,… đảm bảo đúng tiêu chuẩn kỹ thuật.
Bước 4: Thi công nội thất & lắp đặt hoàn thiện
Gia công, lắp đặt bàn ghế, tủ kệ, vách ngăn và các chi tiết trang trí theo hồ sơ thiết kế.
Bước 5: Kiểm tra & giám sát chất lượng
Đơn vị thi công giám sát chặt chẽ từng hạng mục, đảm bảo chất lượng, độ an toàn và tính thẩm mỹ.
Bước 6: Nghiệm thu & bàn giao
Hoàn thiện vệ sinh công trình, bàn giao cho khách hàng, đồng thời thực hiện chính sách bảo hành – bảo trì theo cam kết.

IV. Lợi ích khi lựa chọn đúng đơn vị thiết kế, thi công nội thất văn phòng
Việc hợp tác với một đơn vị thiết kế và thi công nội thất uy tín không chỉ giúp doanh nghiệp sở hữu một không gian làm việc đẹp mắt, tiện nghi mà còn mang lại nhiều giá trị lâu dài. Lựa chọn đúng đối tác đồng nghĩa với việc doanh nghiệp được đảm bảo cả về chất lượng, tiến độ và dịch vụ. Cụ thể, những lợi ích nổi bật có thể kể đến như sau:
Đảm bảo chất lượng công trình: Không gian được thi công đúng bản vẽ, bền đẹp và phù hợp với tiêu chuẩn kỹ thuật.
Tiết kiệm chi phí và thời gian: Hạn chế phát sinh, tối ưu ngân sách và rút ngắn tiến độ.
Tối ưu công năng sử dụng: Bố trí khoa học, mang lại sự thoải mái và nâng cao hiệu suất làm việc.
Thể hiện hình ảnh và văn hóa doanh nghiệp: Văn phòng chuyên nghiệp, hiện đại giúp gây ấn tượng với đối tác, khách hàng.
Hưởng dịch vụ bảo hành – hậu mãi chu đáo: Đảm bảo yên tâm trong quá trình sử dụng lâu dài.
V. Những sai lầm thường gặp khi lựa chọn đơn vị thiết kế thi công nội thất văn phòng
Trong quá trình tìm kiếm đơn vị thiết kế và thi công nội thất, nhiều doanh nghiệp thường mắc phải những sai lầm khiến dự án không đạt hiệu quả như mong muốn. Việc thiếu cân nhắc kỹ lưỡng không chỉ làm phát sinh chi phí, chậm tiến độ mà còn ảnh hưởng trực tiếp đến chất lượng công trình và hình ảnh doanh nghiệp. Dưới đây là những sai lầm phổ biến cần tránh khi lựa chọn đối tác thiết kế, thi công nội thất văn phòng:
Chọn đơn vị chỉ vì giá rẻ
Nhiều doanh nghiệp đặt nặng chi phí mà bỏ qua chất lượng, dẫn đến công trình kém bền, nhanh xuống cấp.
Không kiểm tra năng lực và kinh nghiệm
Việc không tìm hiểu kỹ hồ sơ năng lực, dự án đã thực hiện khiến khó đánh giá uy tín và sự chuyên nghiệp của đơn vị.
Thiếu hợp đồng rõ ràng
Bỏ qua các điều khoản về tiến độ, chi phí, bảo hành… dễ gây tranh chấp khi thi công.
Không tham khảo ý kiến khách hàng cũ
Không lắng nghe đánh giá từ khách hàng trước đó dẫn đến lựa chọn sai, thiếu khách quan.
Bỏ qua yếu tố dịch vụ hậu mãi
Chỉ tập trung vào thi công mà quên xem xét chính sách bảo hành, bảo trì, khiến việc vận hành lâu dài gặp nhiều bất tiện.

Để tránh những sai lầm không đáng có, doanh nghiệp nên lựa chọn đối tác có kinh nghiệm thực tế, hồ sơ năng lực rõ ràng và sẵn sàng cung cấp các dự án đã triển khai. Hãy ưu tiên những đơn vị có quy trình làm việc minh bạch, hợp đồng chi tiết về chi phí – tiến độ – bảo hành. Bên cạnh đó, đừng chỉ nhìn vào giá cả, mà cần cân đối giữa chất lượng, dịch vụ hậu mãi và uy tín để đảm bảo công trình được thi công đúng chuẩn, bền vững và hiệu quả lâu dài.
VI. Gợi ý những đơn vị thiết kế thi công nội thất uy tín
Trên thị trường hiện nay có nhiều công ty hoạt động trong lĩnh vực thiết kế và thi công nội thất văn phòng. Tuy nhiên, để chọn đúng đối tác uy tín, doanh nghiệp nên tham khảo một số thương hiệu đã khẳng định được tên tuổi sau:
-
Nội thất Hòa Phát
Hòa Phát là thương hiệu nội thất văn phòng hàng đầu tại Việt Nam. Ngoài hệ thống sản phẩm đa dạng, công ty còn cung cấp dịch vụ thiết kế – thi công chuyên nghiệp, đảm bảo chất lượng và độ bền cao. Đây là lựa chọn đáng tin cậy cho các doanh nghiệp vừa và lớn.
-
Nội thất YOTA
YOTA tự hào là một trong những đơn vị uy tín trong lĩnh vực thiết kế và thi công nội thất văn phòng trọn gói. YOTA nổi bật nhờ đội ngũ kiến trúc sư giàu kinh nghiệm, quy trình làm việc chuyên nghiệp cùng dịch vụ tận tâm. Chúng tôi luôn mang đến những giải pháp tối ưu cả về thẩm mỹ lẫn công năng, với giá thành hợp lý, phù hợp với nhiều quy mô doanh nghiệp.
Trong thời gian qua, YOTA đã thực hiện thành công nhiều dự án thiết kế – thi công văn phòng cho các công ty công nghệ, doanh nghiệp thương mại và tập đoàn lớn tại Hà Nội và nhiều tỉnh thành khác. Các dự án này đều được đánh giá cao về tính hiện đại, tiện nghi và khả năng phản ánh bản sắc thương hiệu. Chính vì vậy, YOTA đã trở thành công ty được nhiều khách hàng tin tưởng lựa chọn.

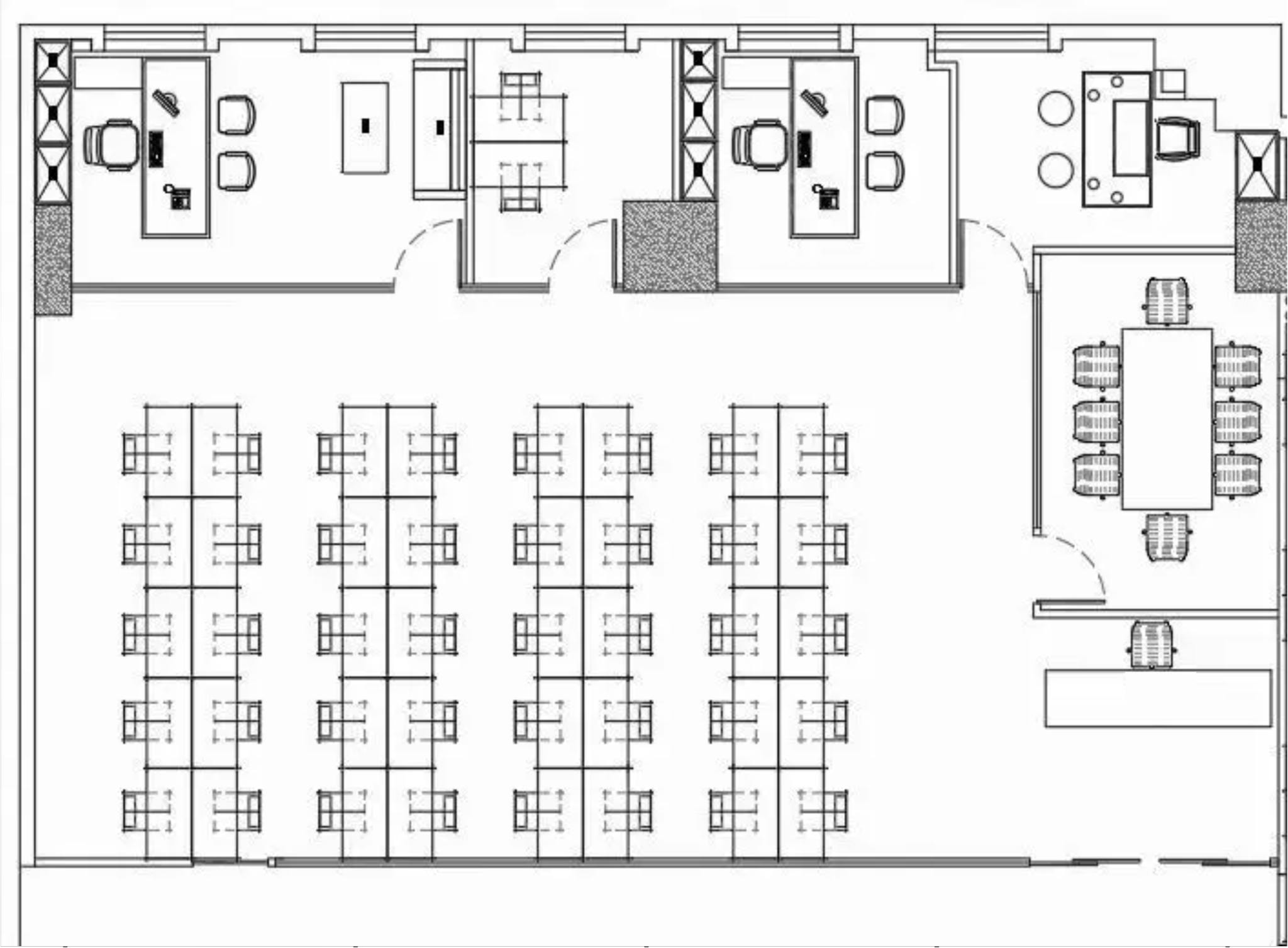
Hình ảnh: YOTA thi công phòng làm việc cho Công Ty CP Công Nghệ Hòa Minh

Hình ảnh: YOTA thi công nội thất phòng họp

Hình ảnh: YOTA thi công văn phòng Giám Đốc Công ty CP Thương mại & Dịch vụ Hoà Minh
Lựa chọn YOTA, bạn sẽ có một đối tác đáng tin cậy, luôn lắng nghe và thấu hiểu, đồng thời mang đến những giải pháp nội thất tối ưu, giúp doanh nghiệp của bạn xây dựng không gian làm việc chuyên nghiệp, hiện đại và đầy cảm hứng.
Thông tin liên hệ
Hotline: 0985.562.820
Website: Yota.vn
Zalo: 0985.562.820
Facebook: Nội Thất Văn Phòng Yota
Email: noithat@yota.vn
Địa chỉ: 701 Quang Trung, Hà Đông, Việt Nam
-
AA Corporation
AA Corporation nổi tiếng với các dự án thiết kế và thi công nội thất cao cấp, không chỉ cho văn phòng mà còn cho khách sạn, resort và công trình thương mại. Thế mạnh của AA nằm ở sự tinh tế, đẳng cấp trong từng chi tiết và khả năng đáp ứng tiêu chuẩn quốc tế.
Địa chỉ: 199C Nguyễn Văn Hưởng, Phường An Khánh, Thành phố Hồ Chí Minh, Việt Nam

Hình ảnh: AA Corporation thi công nội thất văn phòng Vattanac Bank (sưu tầm)
-
Nội thất Govi
Nội thất Govi là thương hiệu uy tín chuyên cung cấp và thi công nội thất văn phòng với đa dạng sản phẩm như bàn làm việc, ghế xoay, tủ hồ sơ, vách ngăn và các giải pháp không gian đồng bộ. Govi nổi bật nhờ phong cách thiết kế hiện đại, sản phẩm chất lượng cao và giá thành hợp lý, phù hợp với nhiều phân khúc doanh nghiệp.
Địa chỉ: Số 5 Nguyễn Khang, Yên Hòa, Hà Nội

Hình ảnh: Govi cung cấp bàn ghế văn phòng cho Bảo Việt Nhân Thọ (sưu tầm)
-
Work & Wonders
Work & Wonders được nhiều khách hàng đánh giá cao bởi quy trình làm việc minh bạch, chuyên nghiệp từ khảo sát, tư vấn cho đến thi công và bàn giao. Đơn vị này chú trọng đến trải nghiệm của khách hàng và dịch vụ hậu mãi chu đáo.
Địa chỉ: Tòa nhà D5 Lô C – Trần Thái Tông – Cầu Giấy – Hà Nội

Hình ảnh: Work & Wonders thi công nhà máy Bell Wether (sưu tầm)
Kết luận
Thiết kế và thi công nội thất văn phòng không chỉ là việc sắp đặt bàn ghế, mà còn là quá trình tạo dựng một không gian làm việc khoa học, thẩm mỹ và truyền cảm hứng cho đội ngũ nhân sự. Lựa chọn đúng đơn vị uy tín sẽ giúp doanh nghiệp tối ưu chi phí, đảm bảo chất lượng công trình và xây dựng hình ảnh thương hiệu chuyên nghiệp trong mắt đối tác.
Trong số những công ty thiết kế – thi công nội thất hiện nay, Nội thất YOTA được nhiều khách hàng tin tưởng bởi sự chuyên nghiệp, kinh nghiệm thực tiễn và dịch vụ trọn gói từ tư vấn, thiết kế đến thi công, bảo hành. Đây chắc chắn sẽ là đối tác đồng hành đáng tin cậy, giúp doanh nghiệp sở hữu văn phòng hiện đại, tiện nghi và phù hợp với định hướng phát triển lâu dài.